随着人类科技的不断进步,工业自动化生产控制开始全面普及。自动化时代的来临,不仅大大减少人类的劳动,而且它精准及时的控制,让精细生产,精准控制成为可能,特别是电磁阀的出现,为我国工业,化工,石油,电力,食品等行业的发展进步,带来了突出贡献。

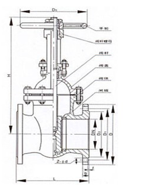
电磁阀由电动执行器和阀门两部分组成,工作以电动执行器为驱动方式,以电力为动力源,配合阀门可远程开关或者调节阀门,广泛应用于石油、化工、电力、冶金燃气等行业的空气、水、蒸汽、各种腐蚀性介质、泥浆、油品、液态金属和放射性介质等各种类型流体的流动控制。电磁阀开关动作速度可以调整,结构简单,易维护,根据不同行业可配调节型执行器、开关型执行器、防爆型执行器等。山东电磁阀。
电磁阀的出现为国内工业生产自动化带来了全面进步。电磁阀受控制端电脑控制,接受光电信号,用来调整阀门的开闭,以及开闭大小程度,不仅可以及时开关,也可以通过阀门开合程度精确的控制流量。电磁阀和气动阀因其精确的控制能力成为自动化生产控制的必备元件。

调节阀门用于调节工业自动化过程控制领域中的介质流量、压力、温度、液位等工艺参数。接收来自仪表传感器、或控制器的0-10V、或4-20毫安信号,自动调节阀门的开度,从而实现介质流量、压力、温度和液位的精准调节。台臣牌调节阀门主要有电磁阀、气动调节阀、自力式调节阀、气动调节球阀、电动调节球阀、气动调节蝶阀、电动调节蝶阀等。
山东电磁阀。阀门的控制可采用多种传动方式, 如手动、电动、液动、气动、涡轮、电磁动、电磁液动、电液动、气液动、正齿轮、伞齿轮驱动等;可以在压力、温度或其它形式传感信号的作用下, 按预定的要求动作,或者不依赖传感信号而进行简单的开启或关闭,阀门依靠驱动或自动机构使启闭件作升降、滑移、旋摆或回转运动, 从而改变其流道面积的大小以实现其控制功能。

电磁阀的特性,已经让其成为工业生产以及自动化控制的必备产品,是工业自动化生产的标志性组合件之一,电磁阀市场随着我国工业改革的逐渐迈进,将会迎来新的增长,前景喜人!